アイランド風対面キッチンと吹抜LDKが魅力の住まい

Concept

土地面積が60坪で建物面積が33坪の広々としたお家

白い外観のアクセントとして木目を採用しより映える外観に。2台分の車が駐車出来るカーポート、そしてお家の前にも広々とした土地がありまして、今後お施主様自身で砂利をまいたり、人工芝を敷いたりする予定です。

土地面積が60坪で建物面積が33坪の広々としたお家
土地面積が60坪で建物面積が33坪の広々としたお家
Plan

ご夫婦のこだわりが詰まったLDK

5帖分の吹抜けLDKが開放的な 憧れのアイランド風対面キッチン。
色味の統一感の中にアクセントとして、扉やキッチン前の壁にグレーを上手く取り入れられています!また、ダイニングテーブルをキッチンの横づけに配置することで配膳しやすい動線が確保できています。

ご夫婦のこだわりが詰まったLDK
ご夫婦のこだわりが詰まったLDK
Design

家事も趣味も、贅沢な空間で楽しむ暮らし

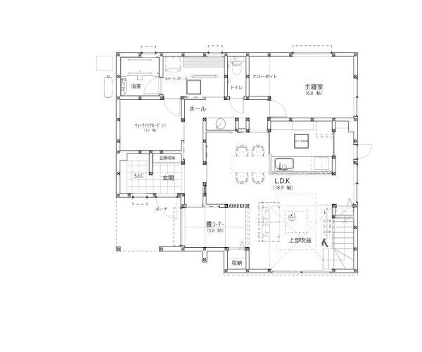
ランドリールームでは、約2.7mの大きめのパイプがあるのでゆったりと室内干しをしていただくことが可能です。
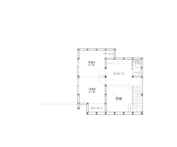
階段を上がった部分にフリースペースが!本棚を設置しその隣にカウンターを設けています。吹抜の天井と繋がっているのでLDKと一体感のある空間になっています。

家事も趣味も、贅沢な空間で楽しむ暮らし
家事も趣味も、贅沢な空間で楽しむ暮らし

Movie

House Information

朝来市 K様邸
延べ床面積/33.56坪
施工床面積/35.69坪

1F間取り図
2F間取り図