開放的なテラス付きナチュラルモダンハウス

Concept

ストイックなデザインの外観

外観の正面は窓を少なくしてストイックなデザインで、玄関も道から直接見えない工夫がされています。
一方LDK側には大きな窓を設置し太陽が差し込み明るく、風の通り道も確保されている空間です。
LDKとテーブルや椅子を置いても広々としたテラスがつながっており、 天気の良い日はここでくつろげる空間となっています。

ストイックなデザインの外観
ストイックなデザインの外観
Plan

こだわりの間接照明

玄関には斜めに大胆にカットした上がり框を採用。
植栽の見える窓と天井にはオシャレな間接照明を設け、目で楽しめる玄関ホールとなっています。
約3.5mある高天井と大きな窓により開放感のあるLDKに。
TV上の間接照明は上下に設置しており、明かりが差し込むように感じることが出来ます。

こだわりの間接照明
こだわりの間接照明
Design

家事ラク動線が工夫された回遊動線

キッチン→パントリー→ファミリークローゼット→洗面脱衣室→LDKと
家事が楽になる回遊動線を追求した間取りとなっております。
奥様がこだわりが詰まったキッチンには大容量の収納棚とパントリーが設けられ、収納には困りません。

家事ラク動線が工夫された回遊動線
家事ラク動線が工夫された回遊動線

Movie

House Information

兵庫県 M様邸
延べ床面積/33.22坪
施工床面積/34.26坪

1F間取り図
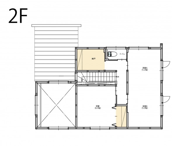
2F間取り図