家事ラク動線とデザイン性を兼ね備えた平屋

Concept

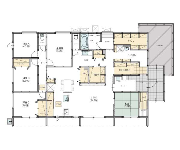
家事の効率化にこだわった動線設計

奥様のご希望でキッチンとダイニングを横並びにし、配膳や後片付けの動線を短縮。
L字型のLDKの中心にキッチンを配置することで、お子様がLDKのどこにいてもお料理しながら見守ることができます。
洗濯動線は、ユーティリティスペースとファミリークローゼットを隣接させ、洗う→干す→収納するの動線を短縮。
ユーティリティスペースは広めにとり、悪天候や花粉の時期の部屋干しに活躍します。
掃き出し窓から外のタイルデッキに出られるので外干しも楽々。

家事の効率化にこだわった動線設計
家事の効率化にこだわった動線設計
Plan

デザイン性を兼ね備えた来客時の目隠し

家電などのキッチン収納は3枚扉で隠し、生活感を軽減できます。
また、キッチン前にも扉付きの収納があるので、LDKがすっきりと片付きます。
玄関には帰宅後すぐに手を洗えるよう造作洗面台を設置。
格子を設けることで来客からの目隠しになるだけでなく、デザイン性にも優れています。

デザイン性を兼ね備えた来客時の目隠し
デザイン性を兼ね備えた来客時の目隠し
Design

空間を柔らかく照らす照明計画

間接照明をふんだんに採用し、おしゃれで温かみのある内装デザインに仕上げました。
壁掛けTV部分の壁やキッチンの折り下げ天井に間接照明を採用することで、空間にアクセントが生まれ、おしゃれな演出となっています。
玄関は足元に間接照明を付けることで、ホテルのような非日常感だけでなく、安全面でも効果的です。

空間を柔らかく照らす照明計画
空間を柔らかく照らす照明計画

Movie

House Information

兵庫県加古郡 N様邸
延べ床面積/39.82坪
施工床面積/42.20坪

1F間取り図