完全予約制
見学会
イベント
兵庫県エリア
【完成見学会 at 姫路市兼田】外部物置つきで、機能性とデザイン性を両立した心地よく暮らせる平屋(姫路店)

日程
2025年12月20日(土)~12月21日(日)
時間
10:00~17:00
場所
兵庫県姫路市兼田
●12月限定の見学会!
●見学と合わせて設計相談や資金相談、土地探し相談もOK!
●見学と合わせて設計相談や資金相談、土地探し相談もOK!
外部物置つきで、機能性とデザイン性を両立した心地よく暮らせる平屋

※現在、仕上げ工事中につき掲載の写真はイメージです
姫路市兼田で完成見学会を開催!
“ちょうどいい暮らし”が叶う平屋。家事ラク動線×充実収納で工夫満載の平屋を実際に歩いてみませんか?2日間限定の完成見学会開催!
見どころポイント
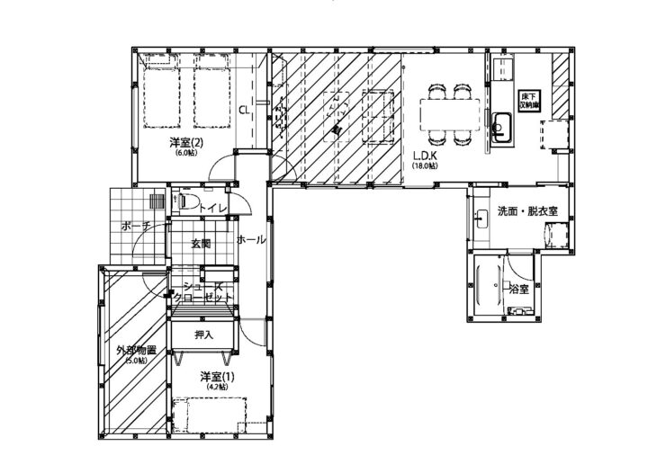
- 18帖LDKが中心の、コンパクトでも広く暮らせる平屋設計
18帖を無駄なく使えるスクエア型のLDK。キッチンからリビング全体が見渡せます。 - 玄関がいつもすっきり片づく“大容量シューズクローク”
靴だけでなく、ベビーカー・アウトドア用品・雨具・掃除道具などをまとめて収納でき、玄関まわりの生活感をしっかり隠せます。
- アウトドア用品もまるごと片づく、便利な外部物置
玄関まわりや室内を汚さずに収納できる外部物置を設置。室内の収納にゆとりが生まれます。
- 家族のプライベート時間を大切にできる2つの洋室
音や生活動線が気になりにくい配置で、ライフスタイルに合わせて多目的に使えます。

広さと使いやすさにこだわった18帖のLDK。

玄関からそのまま出入りできる位置にあるため、靴を脱ぐ→片づける→室内へという流れがスムーズなシューズクローク。

外部物置は屋外からも直接アクセスできる配置のため、室内収納を圧迫しない“第二のストックルーム”として活躍します。

洋室は各部屋とも収納スペースを確保しており、生活導線を邪魔しないレイアウトです。

家族が暮らしやすい動線と必要な広さを丁寧に落とし込んだ、コンパクトで効率的な平屋プラン。
毎日の家事がスムーズに進み、長く快適に暮らせる設計が魅力です。




みなさまのご参加お待ちしております♪

今月だけの特別プレゼント☆サンタさんからのお菓子ブーツ♪
アクセスマップ
●詳細の場所はご予約後、担当スタッフからお知らせいたします。
●カーナビには下記の住所をご入力ください。
〒672-8001 兵庫県姫路市兼田
※カーナビによっては現地がうまく表示されない場合がございます。
●カーナビには下記の住所をご入力ください。
〒672-8001 兵庫県姫路市兼田
※カーナビによっては現地がうまく表示されない場合がございます。

