完全予約制
見学会
相談会
兵庫県エリア
【 完成見学会 at 川西市 】家中を見渡せる、キッチン中心の回遊プランの住まい(箕面店)

日程
2025年11月29日(土)・30日(日)
時間
10:00~17:00
場所
兵庫県川西市加茂
●2日間限定の見学会!
●見学と合わせて設計相談や資金相談、土地探し相談もOK!
●見学と合わせて設計相談や資金相談、土地探し相談もOK!
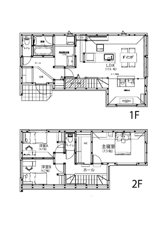
家中を見渡せる、キッチン中心の回遊プランの住まい

※現在、仕上げ工事中につき掲載の写真はイメージです
兵庫県川西市で完成見学会を開催!
開放的で使いやすく機能的な住まい! 1日の生活をイメージして設計したこだわりポイントがたくさん!
見どころポイント
- キッチンからリビングを見渡せる安心設計
家の中心にキッチンを配置し、家族の気配を感じながら家事ができる安心の間取り。 - 玄関からLDK・洗面室へアクセス!人気の回遊動線
キッチンまでの動線は2WAY!玄関からキッチン、洗面室へとぐるりと回れる人気の回遊型設計です。 - 土間収納+玄関クローゼットでスッキリ整う玄関
靴やコート類をすっきり収納できる2つの収納スペースで、いつもでもスッキリした玄関に。 - 勾配天井とスリット階段が生み出す開放感
勾配天井を生かした高さのある開放的なリビングと、抜け感のあるスリット階段でより広がりを感じるLDK。

家の中心にあるキッチンから、リビング全体を見渡せる安心のレイアウト。作業をしながらでも会話がはずみます♪

靴やコート類をすっきり収納できる玄関。土間収納とクローゼットでいつも整った印象に。

光と風を通すスリット階段が、リビングに開放感をプラス。

窓から光が差し込む明るい寝室。シンプルな空間で家具の配置もしやすくなっています。

1日の疲れをリセット♪ 清潔感と落ち着きを感じられるバスルーム。

キッチンを家の中心に配置した、見通しの良い回遊動線プラン。勾配天井とオープン階段が広がりを感じさせるリビングは、家族が集う心地よい空間です。




みなさまのご参加お待ちしております♪

今の季節にちょうどいい♪伸縮性の高いニットバッグです!
アクセスマップ
●詳細の場所はご予約後、担当スタッフからお知らせいたします。
●カーナビには下記の住所をご入力ください。
〒666-0025 兵庫県川西市加茂3丁目
※カーナビによっては現地がうまく表示されない場合がございます。
●カーナビには下記の住所をご入力ください。
〒666-0025 兵庫県川西市加茂3丁目
※カーナビによっては現地がうまく表示されない場合がございます。

