完全予約制
見学会
イベント
兵庫県エリア
【完成見学会 at 加東市南山】LDKを囲む家族の平屋 —光と風がめぐる回遊動線の住まい—(加東店)

日程
2025年11月22日(土)~11月24日(月)
時間
10:00~17:00
場所
大阪府箕面市粟生外院
●3日間限定の見学会!
●見学と合わせて設計相談や資金相談、土地探し相談もOK!
●見学と合わせて設計相談や資金相談、土地探し相談もOK!
LDKを囲む家族の平屋 —光と風がめぐる回遊動線の住まい—

※写真はイメージです
加東市南山で完成見学会を開催!
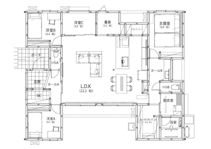
約22帖の広々LDKを中心に、居室を散りばめ、水回りはコンパクトにまとめたこだわりの間取りのお家!2日間限定の完成見学会開催!
見どころポイント
① 広々LDKを中心に家族がつながる設計
22帖超のLDKを中心に居室が散りばめられ、どの部屋からも光と風を感じられるプラン。家族の気配を感じながら、プライバシーも確保できます。
② 家事効率を高める一直線の水まわり動線
キッチンからパントリー、脱衣室、ウォークインクローゼットまでを一直線でつなぎ、家事・収納・洗濯の動きを最短化。
③ 書斎付きで暮らしの多様性に対応
LDK横に書斎を設け、在宅ワークや趣味にも活用可能。リビングからの距離感が程よく、集中と家族時間を両立。
④ 各個室が中庭に面するプライベート設計
洋室A・B・C、主寝室がそれぞれ中庭や外部に面し、どの部屋にも自然光が届く開放的な設計。
⑤ 来客にも対応できる2トイレ設計
ホールA・Bそれぞれにトイレを配置し、家族用と来客用で使い分け可能。生活感を見せずに快適に暮らせます。


※写真はイメージです。

広々LDKを中心に光と風が通り抜ける、家全体が明るく心地よい開放感に包まれる間取りです。




みなさまのご参加お待ちしております♪

今の季節にちょうどいい♪伸縮性の高いニットバッグです!
\ 商品の特徴 /
持つだけでおしゃれになれるニット素材のトートバッグ。
普段使いやお出かけに便利なサイズ感です!
本体サイズ/約W200×H230mm
\ 商品の特徴 /
持つだけでおしゃれになれるニット素材のトートバッグ。
普段使いやお出かけに便利なサイズ感です!
本体サイズ/約W200×H230mm
アクセスマップ
●詳細の場所はご予約後、担当スタッフからお知らせいたします。
●カーナビには下記の住所をご入力ください。
〒6731341 兵庫県加東市南山
※カーナビによっては現地がうまく表示されない場合がございます。
●カーナビには下記の住所をご入力ください。
〒6731341 兵庫県加東市南山
※カーナビによっては現地がうまく表示されない場合がございます。

