“ダイナミック&スタイリッシュ”大空間吹き抜けと耐震性を兼ね備えたお家

Concept

和モダンテイスト

和モダンの重要なポイントである屋根にこだわった外観です。
1階と2階の屋根の距離を短くすることでよりカッコいい仕上がりになりました。
玄関の天井の高さは外の木目調の軒天から室内の天井まで段差がないように
あえて低くして繋がりを演出しました。間接照明との相性も抜群です。

和モダンテイスト
和モダンテイスト
Plan

キッチンを中心に家事楽を追求した家事動線

パントリーや洗面脱衣室、サンルームが
キッチンをベースに繋がっている家事楽動線です。
2枚の引き込み戸を通じてLDKと一体の空間にある2.5帖のサンルームの隣には
3.1帖のファミリークローゼットがあり、最短で家事ができます。

キッチンを中心に家事楽を追求した家事動線
キッチンを中心に家事楽を追求した家事動線
Design

大空間吹き抜けと耐震性を兼ね備えた“ダイナミック”空間

LDKの大空間の吹き抜けには、
梁や斜めの火打ち梁が一切なく開放感あふれる空間に。
テレビの壁は凸凹のあるタイルウォールを採用し、
よりダイナミックさを演出しています。
LDKを中心とした間取りで耐震性も優れています。

大空間吹き抜けと耐震性を兼ね備えた“ダイナミック”空間
大空間吹き抜けと耐震性を兼ね備えた“ダイナミック”空間

Movie

House Information

京都府南丹市 O様邸
延べ床面積/40.51坪
施工床面積/45.34坪

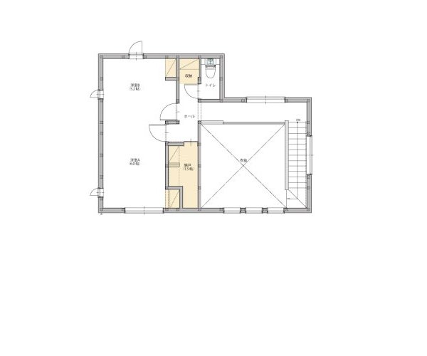
1F間取り図
2F間取り図