グレー×木目を基調とした開放感抜群のシンプルモダンハウス

Concept

グレー×木目×間接照明のホテルライク空間

グレーの壁紙×木目をアクセントとした空間に
間接照明を天井やテレビ裏、ニッチに採用しました。
ダウンライトと間接照明の使い分け方は必見です。

グレー×木目×間接照明のホテルライク空間
グレー×木目×間接照明のホテルライク空間
Plan

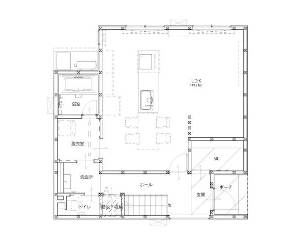
心地よい光が差し込む間取り

キッチンの窓からは外に植えた植栽が眺められるこだわりが♪
お家の中からも自然を感じられます。
主寝室はダウンライトの数を減らし、FIX窓からは明るい光が降り注ぎます。

心地よい光が差し込む間取り
心地よい光が差し込む間取り
Design

視線が奥に抜ける開放感を感じる工夫

開放感のある玄関をテーマに、奥行きのある長い窓やハイドア、
壁紙と同じグレーのスチール手摺を使用しました。
LDKには化粧棚を採用し、奥行きが生まれてより空間が広く感じます。

視線が奥に抜ける開放感を感じる工夫
視線が奥に抜ける開放感を感じる工夫

Movie

House Information

京都府亀岡市 T様邸
延べ床面積/30.55坪
施工床面積/32.47坪

1F間取り図
2F間取り図