終了まで3日
水平ラインの邸宅美と、21帖の大空間。 ― 魔法瓶のような温もりに包まれる、開放感あふれるモダンな住まい
Information
開催情報
開催日 |
2026年05月16日(土)・17日(日) |
|---|---|
時間 |
10:00~17:00 |
開催地 |
兵庫県豊岡市日高町 |
開催店舗 |
豊岡展示場 |
お問い合わせ先 |
Event
イベントの内容
水平ラインの邸宅美と、21帖の大空間。 ― 魔法瓶のような温もりに包まれる、開放感あふれるモダンな住まい

※現在、仕上げ工事中につき掲載の写真はイメージです
水平ラインが美しい、邸宅美をまとう家。
21帖のひろびろLDK、家族みんながのびのび過ごせる大空間。お料理中も背後に開放感が広がる、壁付けキッチンのゆとり。 まるで「魔法瓶」のような温もりのエアコン1台で家中ずっと心地いい住まいです。
見どころポイント
・街並みに映える水平ラインの邸宅デザイン
・壁付けキッチンが生む21帖の大空間
・ゲストをスマートに迎える独立洗面
・エアコン1台で家中快適
暮らしの余裕は、広い玄関から。ゲストを優雅に迎え、家族を機能的に支える土間。
洗面&浴室
誰かがお風呂中でも、気兼ねなくメイクができる。洗面と脱衣を分けた、ストレスフリーな暮らし。

寝室
2階の3部屋すべてに収納を配置。主寝室には2.5帖のウォークインクローゼットを設け、夫婦の衣類をまとめて管理できます。
※掲載の写真は全てイメージです。
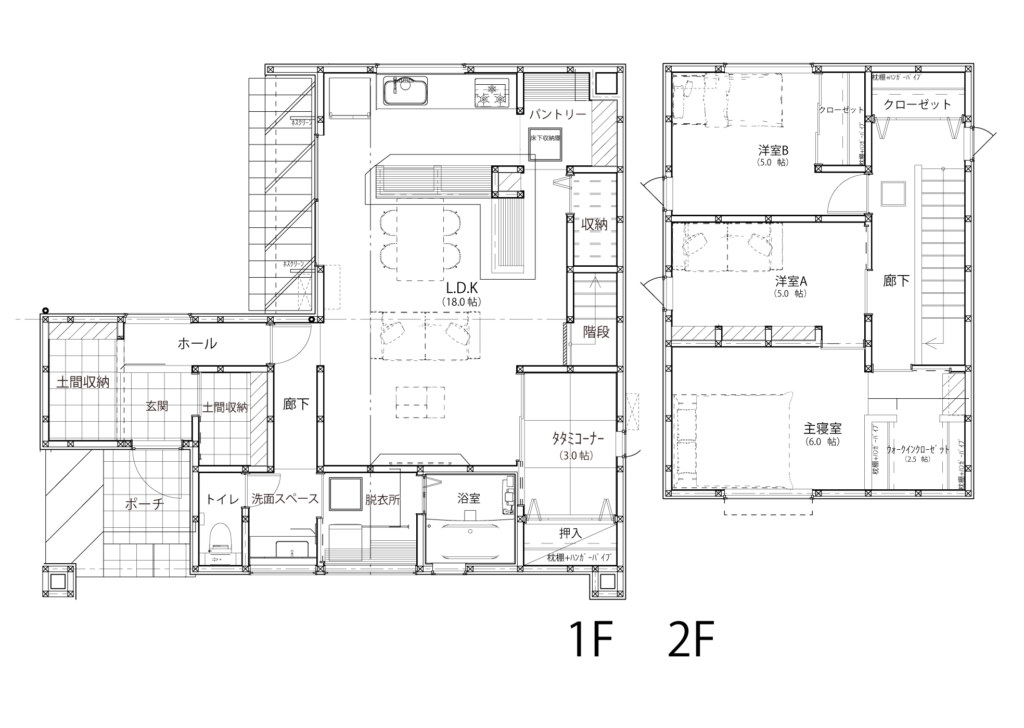
図面

21帖の大空間と、家中が「魔法瓶」のように温かい心地よさは、現地でしか味わえません。 図面だけでは見えてこない“開放感と家事動線の工夫”を、ぜひこの機会にご体感ください。

来場予約特典の進呈条件・注意事項
+
【 来場予約特典 進呈条件 】
- この見学会予約フォームから2日前までにご予約の方(火曜・水曜は定休)
- 「来場アンケート」「お客様満足度アンケート」にすべてお答えされた方
- 初めてご来場される方(1組様1回限り。過去に来場履歴がある方は対象外。複数店舗へのご来場でも1回限りの進呈となります。)
- 1年以内に弊社施工可能エリアにてマイホームの建築を検討されている方
- 内覧、ご相談含め、2時間の打合せ時間が確保できる方
- 23歳以上の方
- 身分証明書(運転免許証・健康保険証など)のご提示をいただける方
- 全額自己資金での建築をご予定の場合は、自己資金証明書をご掲示いただける方
【 ご注意事項 】
- 事前予約をされた方限定の特典となります。
- ご予約後に担当スタッフからお電話させていただき、通話をもってご予約確定となります。
- 特典の進呈はご予約確定された方のみとなります。
- ご予約後、スタッフからの連絡がつながらない方はキャンセルとさせていただきます。
- 来場予定日の当日、ご連絡なく予約時間を30分過ぎた場合は予約をキャンセルさせていただきます。
- オンライン面談は対象外となります。
- 先着順の数量限定特典となりますので、ご予約のタイミングによっては進呈ができない場合がございます。
- ※
- QUOカードPayは初回のご来場時に5,000円分プレゼント、事前審査申込後、審査結果通知の際にご来場された時点で残りの5,000円分を進呈いたします。(最大1万円)
- ※
- お一人でご来場の場合は、事前予約に関わらず事前審査申込後、審査結果通知の際にご来場された時点で全額の進呈となります。
- ※
- QUOカードPayは「満足度アンケート」ご回答時のメールアドレスに、デジタルコードで送信されます。(カードのお渡しはありません)
その他ご不明な点は
担当スタッフへお問い合わせください。
Map
地図
Reservation
イベント予約
設計士が直接お客さまの疑問やお悩みをお伺いし、きめ細やかなご提案をさせていただきます。些細なことでもお気軽にご相談ください。
下記の情報にご記入の上、【入力内容を確認する】ボタンをクリックしてください。折り返し弊社より御連絡させていただきます。
※半角カナは使用しないでください。
※毎週火・水曜日、年末年始はお休みです。
Reservation
来場予約
家づくりを考えはじめたばかりでも大丈夫。
実際の空間に触れることで「自分たちらしさ」のヒントが
見えてきます。どうぞお気軽に見学にお越しください。