愛車とともに暮らす夢のガレージハウス

Concept

モノトーンで仕上げた洗練されたモダンスタイルのお家

ご主人様の趣味が存分に楽しめる、広々としたガレージとウォークインクローゼット。
お仕事や家事に毎日忙しい奥様の負担を少しでも軽くする家事動線と、余った時間で1人でホッとできるスペースなど、共働き世帯の夢を叶えたお住まいです。
忙しさに追われる日々の中で、家に居る時がリラックスできる。そんな理想の家を実現するためにご夫婦でこだわりぬいた約40坪のお住まいです。

モノトーンで仕上げた洗練されたモダンスタイルのお家
モノトーンで仕上げた洗練されたモダンスタイルのお家
Plan

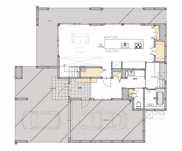
ゆとりの時間を演出しながらも利便性を叶えた設計

インナーガレージとつながり、愛車を眺められる広々とした玄関ホール。大きな窓から自然や四季を感じられるLDK。外部からの視線を遮りながらも外でくつろげるテラス。ゆったりと時間を過ごせる工夫を施しつつ、帰宅した時やお風呂の準備、洗濯など忙しい家事がラクになる使いやすい家事動線にになるよう間取りも工夫されています。

ゆとりの時間を演出しながらも利便性を叶えた設計
ゆとりの時間を演出しながらも利便性を叶えた設計
Design

落ち着いた色合いで統一感のあるデザイン

外壁はモルタル塗り調のサイディングを選び重厚感あふれる外観に。
屋内は白、黒、グレー、ダークブラウンなどを基調としたカラーリングで統一感のある空間を演出。LDKではフルフラットのダイニング一体型キッチン、ハイドアやハイサッシの採用でよりスッキリとした空間の印象を与えます。

落ち着いた色合いで統一感のあるデザイン
落ち着いた色合いで統一感のあるデザイン

Movie

House Information

京都府舞鶴市
延べ床面積/39.93坪
施工床面積/67.45坪

1F間取り図
2F間取り図