フォトジェニックな“ヌック”付き お庭と繋がる開放的な平屋

Concept

フォトジェニックなおこもり空間“ヌック”

奥様こだわりのプライベート空間のヌック。
ご友人にも大好評でフォトスペースとしても大活躍です。
上部をくりぬくことで、窓から差し込む太陽光を家の奥まで届けることができます。
リビング部分は平屋ならではの勾配天井を活かし、開放的な空間となっています。

フォトジェニックなおこもり空間“ヌック”
フォトジェニックなおこもり空間“ヌック”
Plan

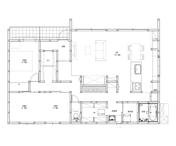
回遊動線を駆使した無駄のない間取り

ヌックを中心に回遊できる動線になっています。
ヌック裏の廊下部分にはカウンターを設け、ワークスペースとして活用できます。
キッチン→水回り→ウォークインクローゼット→リビング・各居室と繋がっており、家事の負担を軽減する動線です。

回遊動線を駆使した無駄のない間取り
回遊動線を駆使した無駄のない間取り
Design

下がり天井が印象的な空間デザイン

キッチンはオープンキッチンでリビングとの繋がりも抜群です。
カウンターや棚の高さはお施主様の身長に合わせて従来より高く設定しました。
下がり天井や色合いなど奥様のこだわりが詰まった空間です。

下がり天井が印象的な空間デザイン
下がり天井が印象的な空間デザイン

Movie

House Information

兵庫県西宮市 M様邸
延べ床面積/31.18坪
施工床面積/33.15坪

1F間取り図