吹き抜けの空間デザインが素敵な高級感のあるデザイン住宅

Concept

高級感のあるデザイン住宅

タイルとデザイン庇のある、かっこいい外観です。
モダンで高級感のある、スタイリッシュなデザイン住宅となりました。
白を基調とすることで、生活感を無くし高級感のある玄関。
間接照明やダウンライトを採用し、ホテルのロビーのような空間を演出します。

高級感のあるデザイン住宅
高級感のあるデザイン住宅
Plan

吹き抜けの大空間

1階から2階までつながった壁はグレーのエコカラットを採用し、高級感のポイントになっています。
吹き抜け×スケルトン階段で開放的な大空間に仕上げました。
リビング横の天井までの大開口で、空間の縦を強調し、より広く感じられる工夫を施しています。

吹き抜けの大空間
吹き抜けの大空間
Design

モノクロでまとめられたLDK

ダイニングキッチンは黒でまとめられ、シックで落ち着いた印象を与えます。
キッチンには間接照明を設け、おしゃれで明るい空間に仕上げました。
ぐるぐる回遊できるアイランド風キッチンは、ベトングレーのグラフテクトを採用。
色味を絞ることで統一感が生まれ、ホテルライクな雰囲気を醸し出します。

モノクロでまとめられたLDK
モノクロでまとめられたLDK

Movie

House Information

大阪府 K邸
延べ床面積/37.97坪
施工床面積/40.58坪

1F間取り図
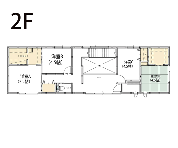
2F間取り図