完全予約制
見学会
相談会
大阪府エリア
【完成見学会 at 大阪府柏原市 】家族時間×書斎×大収納!「欲しい」を全部詰め込んだ2階建ての家(中百舌鳥店)

日程
2025年1月24日㈯・25日㈰
時間
10:00~17:00
場所
大阪府柏原市田辺
●土地探し相談や資金相談、設計相談もOK!
●平日のご見学もお気軽にご相談ください。
●平日のご見学もお気軽にご相談ください。
家族時間×書斎×大収納!「欲しい」を全部詰め込んだ2階建ての家

※掲載の写真はイメージです。
大阪府柏原市田辺で完成見学会を開催!
家族とつながりながら、ひとり時間も心地いい。
充実収納と快適動線が、毎日の暮らしを豊かに育む家の完成見学会開催!
見どころポイント
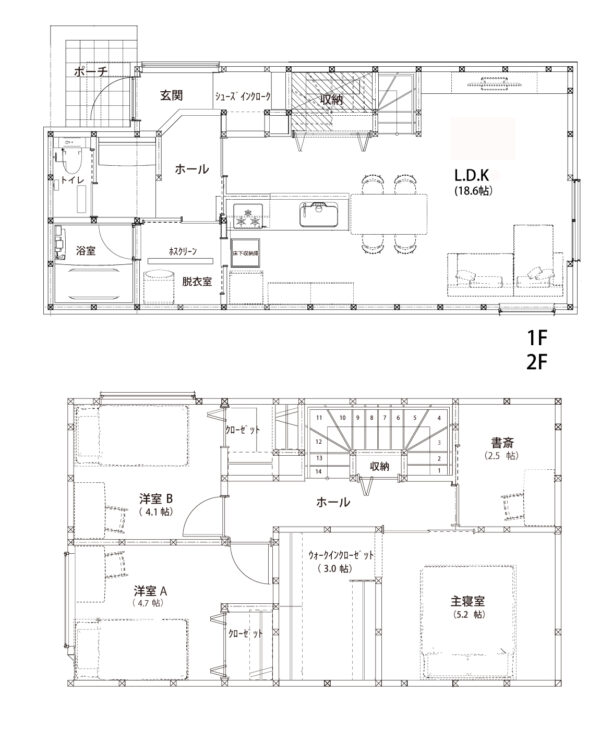
- 【階段下のデッドスペース】を有効活用!
掃除道具や日用品をすっきり収め、空間を無駄なく使えます。
- 【見守り動線のあるLDK】顔を見て「おかえり」が言える!
必ずリビングを通って2階へ上がる、家族をつなぐ動線設計。
- 【個室+共有収納】家族の成長に対応できる間取り!
ウォークインクローゼットや書斎を備え、将来の暮らしにも柔軟です。

横並びダイニングで、料理の時間が家族のイベントに。
ご家族で餃子やピザを一緒につくりながら、自然と会話が生まれます。

キッチンの前を通って2階へ上がる設計なので、必ず家族と顔を合わせる動線。
お子さまが成長しても、さりげなく顔を合わせられる間取りです。

ホスクリーン付き脱衣室で、室内干しも安心。
忙しい方の強い味方です。

寝室横で使いやすい、ゆとりあるウォークインクローゼット。
衣類の出し入れがしやすく、朝の身支度や就寝前の動線もスムーズです。
※掲載の写真は全てイメージです。

横並びキッチンと回遊性のある動線で、家事も家族時間もスムーズに。
2階には全室収納に加えウォークインクローゼットと書斎を備え
成長やライフスタイルの変化にも寄り添う住まいです。




みなさまのご参加お待ちしております♪

\今月のプレゼント☆/
冬場に大活躍の加湿器♪
商品の説明
乾燥する時期に大活躍!
USB式のコンパクトな卓上加湿器です☆
商品サイズ:φ67×91mm
アクセスマップ
●詳細の場所はご予約後、担当スタッフからお知らせいたします。
●カーナビには下記の住所をご入力ください。
〒582-0024 大阪府柏原市田辺
※カーナビによっては現地がうまく表示されない場合がございます。
●カーナビには下記の住所をご入力ください。
〒582-0024 大阪府柏原市田辺
※カーナビによっては現地がうまく表示されない場合がございます。

