完全予約制
見学会
イベント
大阪府エリア
【完成見学会 at 箕面市粟生外院】愛犬と家族が心地よく過ごす、中庭のある家。(箕面店)

日程
2025年12月20日(土)~12月21日(日)
時間
10:00~17:00
場所
大阪府箕面市粟生外院
●2日間限定の見学会!
●見学と合わせて設計相談や資金相談、土地探し相談もOK!
●見学と合わせて設計相談や資金相談、土地探し相談もOK!
愛犬と家族が心地よく過ごす、中庭のある家。

※現在、仕上げ工事中につき掲載の写真はイメージです
箕面市粟生外院で完成見学会を開催!
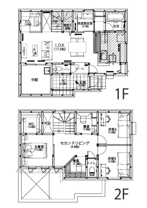
中庭のある17.5帖のLDKを中心に、玄関横にシューズクローク(SC)、階段下収納、ドッグヌック、2階にはセカンドリビング+書斎を備えたホテルライクな家!2日間限定の完成見学会開催!
見どころポイント
- 家の中心に光を集める、中庭のある暮らし
LDK(17.5帖)に面した中庭と吹抜けが、室内に自然光と風をたっぷり取り込みます。
- ドッグヌックで、家族とペットが同じ空間にいられる安心設計
LDKの一角に設けた「ドッグヌック」は、愛犬が安心してくつろげる専用スペース。家族の気配を感じながら過ごせる位置にあり、ペットとの暮らしをより豊かにします。
- セカンドリビングと書斎で叶える“+αの時間”
2階にはセカンドリビングと書斎を設け、在宅ワークや趣味の時間など、家族それぞれの過ごし方に寄り添う空間を確保しています。

プライベートな庭がLDKとつながる、心地よいひとつながりの空間。

キッチンから中庭への視線が抜ける配置になっており、自然光が入りやすく開放感があります。料理をしながら外の緑を感じられるのが魅力です。

中庭では洗濯物を干したり愛犬と遊んだりと、家族の暮らしの一部となる、シンボリックな存在です。

主寝室からは中庭も望め、吹抜やセカンドリビングにも近接しており、2階の明るさと風通しを取り込めます。

中庭を中心に光と風が通り抜ける、家全体が明るく心地よい開放感に包まれる間取りです。




みなさまのご参加お待ちしております♪

●12月限定の見学会!
●見学と合わせて設計相談や資金相談、土地探し相談もOK!
●見学と合わせて設計相談や資金相談、土地探し相談もOK!
アクセスマップ
●詳細の場所はご予約後、担当スタッフからお知らせいたします。
●カーナビには下記の住所をご入力ください。
〒562-0025 大阪府箕面市粟生外院
※カーナビによっては現地がうまく表示されない場合がございます。
●カーナビには下記の住所をご入力ください。
〒562-0025 大阪府箕面市粟生外院
※カーナビによっては現地がうまく表示されない場合がございます。

