完全予約制
見学会
京都府エリア
【完成見学会 at 福知山市新庄】思い出をつなぐ、あたたかな二世帯住宅(福知山店)

日程
2025年12月13日(土)・14日(日)
時間
10:00~17:00
場所
京都府福知山市新庄
●12月限定の見学会!
●見学と合わせて設計相談や資金相談、土地探し相談もOK!
●見学と合わせて設計相談や資金相談、土地探し相談もOK!
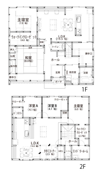
家族があたたかく集う二世帯住宅 ― 古材を活かした、思い出が続く住まい

※現在、仕上げ工事中につき掲載の写真はイメージです
京都府福知山市で完成見学会を開催!
家族の思い出を受け継ぐ古材と、二世帯が心地よく過ごせる工夫が詰まった完成見学会を開催!
見どころポイント
- 家族が暖かく集う二世帯計画
玄関・浴室は共用。毎日の出会いはそのままに、生活は適度に分ける設計で “近すぎず遠すぎない”関係を実現。
- 古材を再利用した“記憶をつなぐ”空間
解体してしまったご実家の古材を意匠として再活用。新しい暮らしの中に、懐かしさと語れるストーリーを宿します。
- プライバシーと家事ラクを両立する動線
共用⇄各世帯をつなぐルートを最短化。音・視線の配慮と回遊動線で、互いに気兼ねなく暮らせます。

(1F親世帯)木の温もりを感じるダイニングキッチン。ゆったりと過ごせる、落ち着いた色合いの空間です。

(2F子世帯)親世帯も子世帯も、広い勝手口やパントリーを備えられているので“しまう×運ぶ”がスムーズ!

(2F子世帯寝室)生活感をすっきり隠せるウォークインクローゼットが隣接した、寝室。

(2F子世帯)キッチンからも目が届くLDKに面したタタミコーナーは、お子さまが小さいうちは遊び場やお昼寝のスペースにも便利♪

昔の住まいの記憶を受け継ぎつつ、世帯ごとのプライバシーにも配慮した間取り。
世代を超えて家族が穏やかに暮らせる、心に残る二世帯住宅です。




みなさまのご参加お待ちしております♪

今月だけの特別プレゼント☆サンタさんからのお菓子ブーツ♪
高さ12㎝
高さ12㎝
アクセスマップ
●詳細の場所はご予約後、担当スタッフからお知らせいたします。
●カーナビには下記の住所をご入力ください。
〒620-0926 京都府福知山市新庄
※カーナビによっては現地がうまく表示されない場合がございます。
●カーナビには下記の住所をご入力ください。
〒620-0926 京都府福知山市新庄
※カーナビによっては現地がうまく表示されない場合がございます。

