完全予約制
見学会
イベント
兵庫県エリア
【完成見学会 at 神戸市西区】テラス付き! 広いリビングで開放感いっぱいの家(加古川店)

日程
2025年12月13日(土)・14日(日)
時間
10:00~17:00
場所
兵庫県神戸市西区桜が丘東町
●見学と合わせて設計相談や資金相談、土地探し相談もOK!
テラス付きで暮らしを豊かに✨
広いリビングと吹抜けで開放感いっぱいの家🏠

※掲載の写真はイメージです。
神戸市西区で完成見学会を開催!
効率的な時短動線と計算された収納力が、「家事のしやすさ」と「家族の時間」を両立!家族みんなが快適に過ごせる住まい✨
見どころポイント
-
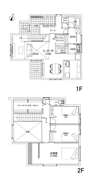
暮らしを豊かにする【LDKと繋がるテラス空間】
LDKからそのまま出られるテラスは、子どもの遊び場や、くつろぎの空間として多目的に活用。 -
家族の絆が深まる!【25帖LDKと吹抜けの開放感】
LDKの中心に設けた吹抜けが、空間に縦の広がりと明るさをもたらします。 -
上質な空間を演出!【間接照明付きの折下げ天井】
キッチンには間接照明付きの折下げ天井を採用。リビングから繋がる広い空間のアクセントに。 -
居室をすっきり保つ!【大容量ファミリークローゼット】
家族全員分の荷物を一か所に集約したスッキリ収納!身支度しやすい生活動線。
【リビングからそのまま出られるテラス】
外の空気を感じながらくつろいだり、お子さまの遊び場として使ったりと、多彩な楽しみ方ができます。

【家族みんなが自然と集まる吹抜けのリビング】
リビング中央の吹抜けが、光と風を取り込み、明るく心地よい空間を演出。

【洗練された雰囲気が魅力の折下げ天井×間接照明】
キッチン上部の折下げ天井と間接照明が空間に奥行きを与え、ワンランク上の生活を演出。

【片付け上手な暮らし。家族みんなで使えるファミリークローゼット】
家族の衣類や季節用品をまとめて収納できる大容量スペース。一か所に収納することで身支度しやすい生活動線が実現
※掲載の写真は全てイメージです。

開放感と家族の繋がりを両立!デザイン性と快適性のある間取り
開放感、デザイン性、家族の繋がりを感じるシックでモダンなお家です。




みなさまのご参加お待ちしております♪

\今月だけの特別プレゼント☆/
サンタさんからのお菓子ブーツ♪
🎄ぎっしり夢が詰まったお菓子ブーツ🎅
ホームライフからのクリスマスプレゼントです🎁
アクセスマップ
●カーナビには下記の住所をご入力ください。
〒651-2225 兵庫県神戸市西区桜が丘東町
※カーナビによっては現地がうまく表示されない場合がございます。

