完全予約制
見学会
兵庫県エリア
【完成見学会 at 朝来市和田山町】金属サイディングの質感と木のぬくもりが調和するお家(朝来店)

日程
2025年11月8日(土)~11月16日(日)
時間
10:00~17:00
場所
兵庫県朝来市和田山町玉置
●平日のご見学もお気軽にご相談ください。
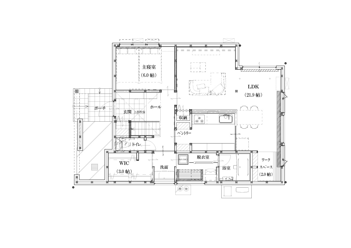
金属サイディングの質感と木のぬくもりが調和するお家

兵庫県朝来市和田山町にて完成見学会を開催!
金属サイディングの質感が際立つ、シャープでスタイリッシュな外観。
金属の輝きと木のぬくもりが調和する住まいが体感できる見学会。
見どころポイント
- オークの無垢床と淡いグレーの壁紙が、やさしく上質な空間を演出。
自然な艶と経年変化を楽しめるオーク材と木の質感を引き立てる上品な背景として機能します。
- 玄関には開放的な吹抜と鉄骨階段を設け、入った瞬間に広がりを感じる工夫が。
吹抜と鉄骨階段の組み合わせによって、玄関に入った瞬間から“広がり”と“デザイン性”を感じられる空間に。
- テレビ背面には大判のエコカラットを使用し、デザイン性と快適性を両立しました。
空間の印象を引き締める上質なアクセントウォールで、機能美あふれるリビングの仕上がりです。






完成見学会は、実際に建てられたばかりの「等身大の家」を見学できる絶好の機会です。
住宅展示場のモデルハウスとは違い、現実的な家づくりのヒントがたくさん詰まっています。
完成見学会とは
完成現場見学会は、施主様が実際に建てられたお住まいを、お引き渡し前に見学できるイベントです。モデルハウスでは分からない、現実的な広さや間取り、設計の工夫、自然光の取り入れ方などを「実物大」で体感できます。
家づくりをご検討中の方には、暮らしのヒントが満載の完成見学会。「この床材の色がいい」「こんなキッチンにしたい」など、具体的なアイディアが膨らみ、理想のイメージが明確になります。見学会で見られるお住まいごとに、お施主様がこだわった収納や便利な家事動線、コンセントの位置など、先輩の「なるほど!」という工夫を直接見て参考にできるのも完成見学会の魅力です。
リアルなお住まいに触れることで、家づくりはもっと楽しく、ワクワクするものに。ぜひお気軽にご来場ください。
リアルな広さや暮らしのイメージが掴める4つのポイント
- 感覚でわかる「リアルな広さ」
「この8畳は思ったより広いな」など、図面や数字だけではピンとこない部屋の広さ、天井の高さ、廊下の幅を、ご自身の身体で直接確かめることができます。
- 写真では伝わらない「リアルな眺め」
「このキッチンからリビングはこう見えるのか」といった、特定の場所に立った時のリアルな眺めや空間のつながりを確認できます。
- 暮らしの動きを「シミュレーション」
キッチンに立って料理する様子や、ソファを置く場所、家族が過ごす様子などを想像することで、具体的な家事動線や生活動線をシミュレーションできます。
- 未来の我が家を「具体的にイメージ」
これらの体験を通じて、漠然としていた理想の暮らしが「自分たちがそこで生活する姿」として、ありありと具体的にイメージできるようになります。
みなさまのご参加お待ちしております♪

アクセスマップ
〒669-5213 兵庫県朝来市和田山町玉置 近辺
※カーナビによっては現地がうまく表示されない場合がございます。

