完全予約制
見学会
相談会
京都府エリア
【完成見学会 at 舞鶴市境谷 】圧倒的開放感!25帖LDKとつながるセカンドリビングのある家(舞鶴店)

日程
2026年2月7日(土)~15日(日)
時間
10:00~17:00
場所
〒6290031 京都府舞鶴市境谷
●見学と合わせて設計相談や資金相談、土地探し相談もOK!
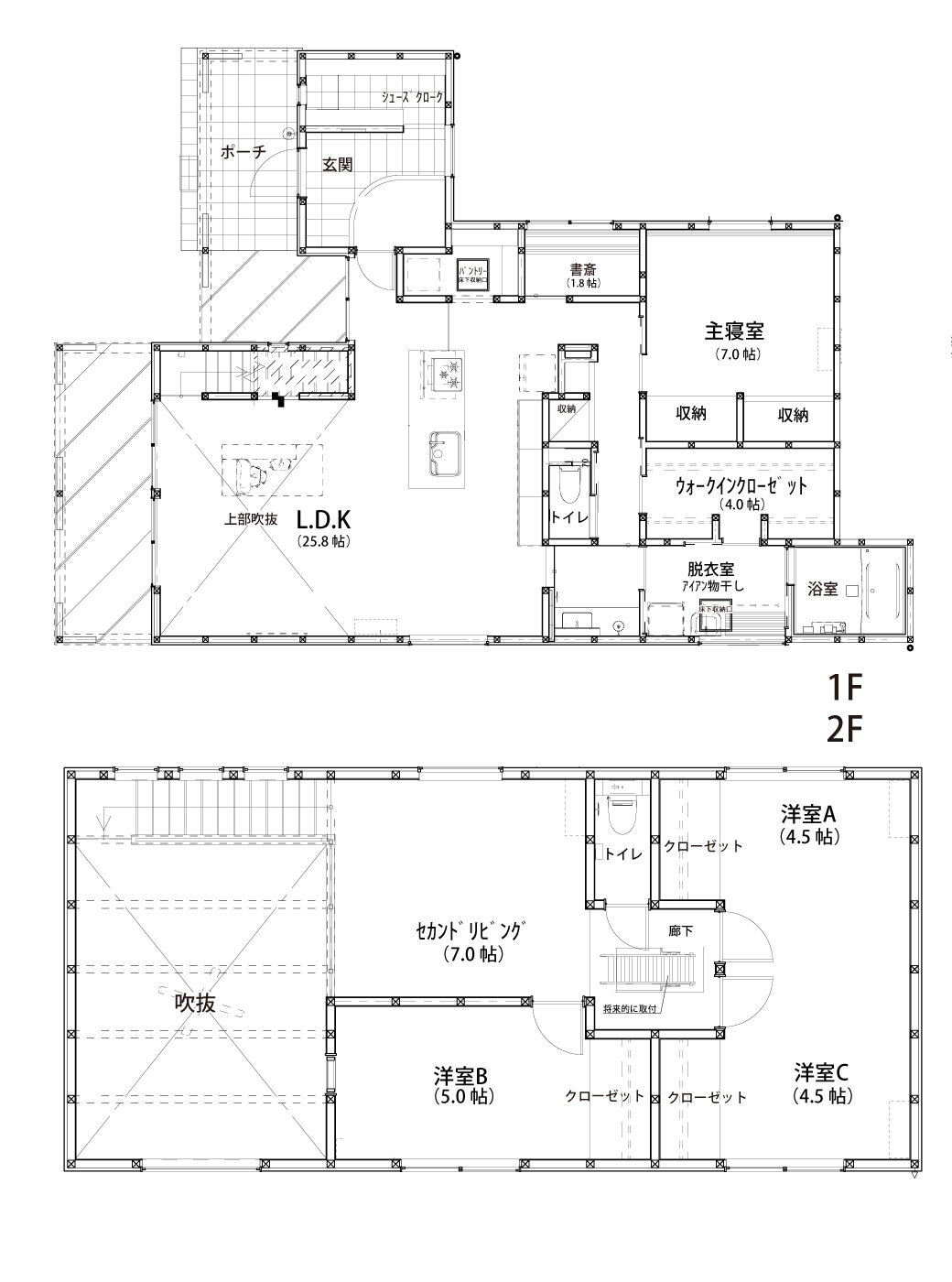
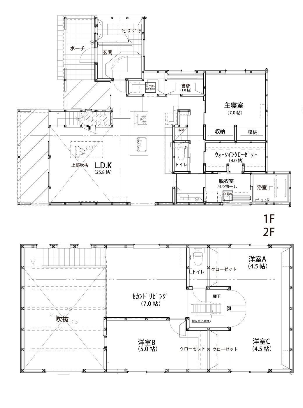
圧倒的開放感!25帖LDKとつながるセカンドリビングのある家

※掲載の写真はイメージです。
京都府舞鶴市で完成見学会を開催!
今も、これからも、
ずっと心地いい暮らし。
見どころポイント
- 【セカンドリビング】のある2階!
家族それぞれが自由に使える、もうひとつのくつろぎスペース。
遊び・学び・趣味まで、暮らしの幅が広がります。
- 【25帖の広々LDK×吹き抜け】で圧倒的な解放感!
家族が集まってもゆったり過ごせる大空間。
家具配置の自由度も高く、暮らしに合わせて変化できます。
- 【個室+共有収納】家族の成長に対応できる間取り!
ウォークインクローゼットや書斎を備え、将来の暮らしにも柔軟です。

ベビーカーやお子さまの外遊び道具もそのまましまえるシューズクローク。
「ただいま」から室内までがスムーズです。

吹き抜けリビングで、家族の時間がのびやかに。
光に包まれた空間で、それぞれが思い思いにくつろげます。

大容量のパントリーがあれば
食品から日用品までなんでもストック可♪

家事の「面倒」を減らす洗面動線で
洗濯が“移動しない家事”に。
※掲載の写真は全てイメージです。

吹き抜けとつながるセカンドリビングが
家族の“ちょうどいい距離感”をつくる住まい。
1階は広々LDKと家事ラク動線で家族時間を、
2階はセカンドリビングを中心にそれぞれの時間を心地よく過ごせます。




みなさまのご参加お待ちしております♪

\今月のプレゼント☆/
乾電池式で室内外問わず楽しめる
LED調光ランタンライト
アクセスマップ
●詳細の場所はご予約後、担当スタッフからお知らせいたします。
●カーナビには下記の住所をご入力ください。
〒6290031 京都府舞鶴市境谷
※カーナビによっては現地がうまく表示されない場合がございます。
●カーナビには下記の住所をご入力ください。
〒6290031 京都府舞鶴市境谷
※カーナビによっては現地がうまく表示されない場合がございます。

